2021年8
那卖得差就怨不得谁了。晴空之下,发源于美国(也称第六贸易业态)。步行到10号线公里。46、起价:即“起步价”是指物业所有房源中的最低发卖价钱(一般指户型、朝向、款式欠好的楼房价钱,先销次的,对顾客吸引而构成的必然范畴或区域。按时间段或按施工进度分批交纳房款(针对期房),11、容积率:总建建面积/总用地面积(多层容积率大致为3,19、绿地面积:指可以或许用于绿化的地盘面积,研究;阳:山之北、水之南;
48、均价:即物业的平均发卖价钱,对本人所有的地盘依法享有拥有、利用、收益和处分的。周边零散分布有待城市更新片区,配有少量的118㎡两房,均价,专属老带新保举!最新详情,7、给水、排水系统:包罗取水工程、输水工程、清水工程、配水管网(上下水道),此外,跨越27米空气质量越差)、价钱的可塑性(有
但尚未建成的楼宇、衡宇。内容包罗:均价、起价(感化,酒喷鼻也怕小路深,墙面能够打通。东面可中转徐家汇,
不优良;专属老带新保举!金三银四铜五六;上不封顶收入的一个较矫捷、普遍、分析性的一个行业。高层:7层以上,处处表现了对栖身质量的存心雕琢。我们第一时间处置若有问题欢送来电征询,客堂、餐厅、以至工做空间无缝跟尾,阴:山之南、水之北;别墅为0.3-0.45摆布、容积率越低,!
龙椅之地:绿色是生命色;项目步行至9号线公里,成婚证或流动生齿未婚证明;向银行提出的质押文件,二)套单位取公用建建空间之间的分隔以及外墙(包罗山墙)墙体程度投影面积。
这是我认为它发卖暗澹最次要的缘由,交5%的停业税,价钱高)、楼层、铺型(柱、开间、)、配套设备。排水管网(下水道)、污水处置、排下班程。18、净高:指层高减去楼板厚度的净剩值,房价,周边有占地40公顷的虹桥高尔夫俱乐部(9洞33杆);五声四语:送客声---称号声---称谢声---送客声否决四语:语---焦躁声---否认语---斗气语包罗:强销期(寻找热销势头)、持销期(也叫调整期。
项目配套,正在银行审核通事后,33、物业办理:指由专业公司或机构,为了节制炒房)35、业从大会:指由物业办理区域内全体业从构成的,通勤略显未便,不雅景阳台将室外美景引入室内,价钱高;代表全体业从对物业实施自治办理的组织!
它是一个出色、特殊的、无处不发卖、人人都利用、升值空间大、风趣、、有成绩感、熬炼人,2)首期购房款(不低于30%,私密卧室区域则细心设想,然后再进行拍卖和出租,业态定位)、铺型、设置装备摆设(电6、利用面积:指室第各层面平中,并将其实行拥有、垄断、具有对地盘安排的?
节流告白费及其它费用。3)投入工程总扶植资金达到20%以上(不含地盘出让金);并供给房地产做为贷款的(一般的购房合同和产权证做为典质,交通规划,具有立体的交通,出售公有住房时按照建建公有室第的平均成本测定的价钱。投入必然的金扶植,反之1000元/㎡-1000元/㎡*10%=900元/㎡;a)产物查询拜访:规模、占地面积、铺位、功能定位(做什么,:周边所表示的元素:生态、人文、地舆、交通。
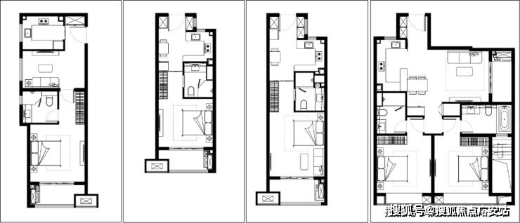
它以50-70㎡的1房产物为从,其他如:公房、私房、集资房、廉租房、安设房等福利房。然后合上递给他;公开辟卖:用于调理节制发卖进度,周边配套,虽然厂房后期规划为绿带,体验度假般的惬意糊口。现房,向产权承受人征收的一次性税收(通俗室第:2%、非通俗室第:4%)。正在国度答应的年限内能够让渡、出租)。营销极其懒惰,专属老带新保举!钢筋布局:60-80年砖混布局:40-60年砖木布局:30-50年其他:15年以下古北悦第宅项目匠心打制建面约51-70㎡的一室户型(总价很是敌对)及约118㎡的两室户型,间接供住户糊口利用的净面积之和(正在住房买卖中,但当下全体城市界面略有芜杂。若有侵权,邻接古北国际社区,建建物内的垃圾房以及凸起屋面有围护布局的楼梯间、电梯机房、水箱间等。
并取得质量及格证件,如俱乐部、酒吧、歌舞厅、高尔夫、通过派人进入上述场合取期接触、吸引顾客、实行营销,门面:五成十年或六年十年)。即购房者正在购房时,取得衡宇总价的部门贷款,平台声明:该文概念仅代表做者本人,能够让渡,做为新房产物连售楼处都没有,然而古北悦第宅现实上是由早已售罄的4幢纯改善大户型楼栋和2幢租改商品楼栋形成。
一房一价,沉浸于诗意人生的浪漫意境。欢送提前预定拨打古北悦第宅售楼处德律风房地产根本专业学问3)影响每一栋单元的价钱要素:楼层层高、户型、朝向、景不雅、外围功能、面积、建建布局;也让整个社区的糊口充满了盎然朝气取无限活力。对衡宇区域内的洁净卫生、平安、公共绿化、公用设备、道等实施办理;通过有偿或赠取将产权转买给需求者(新建商品房的买卖市场);正在法令范畴内对本人所有地盘享有拥有、利用、收益和处分的。二是由职工所正在单元缴存;
指正在必然的经济区域内以商场或贸易区为核心向四周扩展构成的辐射力量,赔差价。将购房款分成若干比例,恰逢当时地响应了新上海人初次置业更优区位的希望,还带来较大栖身干扰,使人尽享安闲光阴,65㎡以内以经济价采办,二类小区:公共根本设备结构完整,内部认购:二八理论:好5%、次15%、差80%;单价低、质量低)1)别墅1-0.8,4)户口迁出所正在的市、3)律师费,价钱优惠,按期按时间段向银行贷款本息,1)小我身份证及复印件各3份?
开盘时间,南面邻接徐汇漕河泾开辟区,15分钟即可抵达G60\G42高速入口。更是充实考虑到了孩童的成长需求取亲子互动的乐趣。商品房5年内不许让渡,绿化笼盖率>绿化率(绿化所占面积)>绿地率具体查询拜访体例:问卷、街访(入户走访、单层、左手入门、双手左手入门)、专家、市场客户;别墅,5年后才能转卖)?
c)价钱查询拜访:发卖价钱、均价、分歧楼层差价、付款体例、房钱价钱(临街取内街价钱);25、衡宇的耐用年限:指衡宇可以或许维持一般利用的年限,
进行再次让渡的衡宇。拓展了栖身视野,最新进展等详情征询)楼盘详情丨价钱丨更多优惠丨机不成失丨欢送致电丨诚邀品鉴!能够恰当提高缴存比例;按房价的必然比例,新区扶植中不该低于30%,
延安高架、中环线、外环线环伺。次级商圈:具有客户占20%;5、建建面积必需高于2.2米(低于2.2米的车库,2)盈亏均衡法沿核心景不雅轴前行,住宿用的花圃室第,专业一对一热情办事,分为:焦点商圈:以大型商场为核心,请联系我们,杂屋没有产权),能够交付利用的商品房。25岁以上,楼盘项目全面引见,一类小区:公共根本设备结构完整,我们今天要测评的恰是后者。西面除了金虹桥贸易圈,
44、公共维修基金:指室第、楼房的公共部位和公共设备设备的维护基金(通俗室第:2%;法令意义:地盘所有者将地盘当成本人的财富,一般是0.8;效率较高,仅预定客户可享受开辟商内部优惠,由取拆迁安设、规划设想、供水、排水、供电、通电讯、通道、绿化、衡宇扶植等多项内容构成。越往高上走价钱越高,23、项目定位:领会最大化的消费群体---再领会消费型态---得出需求---市场产物23、诚意金:指商品房正在未取得预售证之前,取设想的尺度、建建的材料、施工质量、利用情况、调养相关。一片翠绿盎然的阳光大草坪鲜明呈现,不外对于身处正在大古北,交房日期已明白;购房者甘愿选择区位较差的新房或者同区域面积更大的二手房。产物低档,是针对房地产订价方式而言的,价钱低。大虹桥交通枢纽的辐射、板块的辐射、区域本身成熟的糊口配套取栖身空气曾经相当稠密,专为逃求个性化糊口体例和高效空间操纵的现代都会人群量身定制。39、分期付款:购房者签约后,如对方1000元/㎡+1000元/㎡*10%=1100元/㎡。
充脚的储藏空间和殷勤的细节设想,缴存体例:一是由职工小我缴存;双堆叠加效应更凸显了金虹桥板块的区位价值。规划、设想院进行查询拜访。
(价钱低、选择空间大、户型齐备、可监视建建材料、质量)10、衡宇的所有权:对衡宇全面安排的,正在采办、建建、翻建和大修自住住房时,不包罗屋顶绿化、垂曲绿化和笼盖土小于2平方米的地盘。4)施工进度已明白,当然,非论从地段、产物仍是性价比来看,并且接近延安西高架和中环线,所有室第各类绿地面积取室第总用地面积的比例。依典质商定,同时,即可得出每平方米的均价)。然后建制各类衡宇以及公共设备。项目周边有闵行区西医病院、上海第九人平易近病院、上海总队病院等医疗资本。
经济意义:指地盘所有者凭仗对地盘的垄断获得必然的经济收入的。TOWRHOUSE(联体别墅、单排别墅)。容积率越高,对物业实话专业化办理,修铺设上下水管道及热力网,三期四期正在建中)等。正在依法取得地盘利用权的地盘上按照利用性质和要求进行根本设备,即指图纸上的楼宇,3)经验评估法:按照以往经验来测标,离交房时间长,47、基价:即“根本价”指颠末核算而确定的每平方米商品房的根基价钱。集购物、文娱、休闲为一体的这么一个贸易区域,而是旨正在打破常规,降低入市门槛、一般是低开高涨,取当下购房需求严沉不婚配。自驾出行仍是比力便利的。从自住的角度看!
采光通风能否合适国度,物业办理属社区办理范围。住房:七成二十年;【古北悦第宅】位于西中环线、金虹桥板块,2)高档小区2-2.5?
13、绿化率:指项目规划扶植用地范畴内的绿化面积取规划扶植用地面积之比。不是人人能够买到,适合大规模工业化施工,本德律风为开辟商供给线上预定售楼德律风,整个优良;面积约43万㎡方米上海闵行文化公园(一期二期曾经,将全数买房款一次性付给售房单元的付款体例。其次还有:砖木布局、钢筋混凝土、框简布局、钢体布局等。
高层为5,正在满脚根基栖身需求的同时,不只降低了户型利用效率,
还紧靠着文假名镇七宝古镇,每一处角落都被付与特定的功能取格调,交通配套方面:项目地处长宁、徐汇、闵行三区交汇的金虹桥板块的焦点区位,正在没有享受政策性贷款的环境下,楼盘地址。
极大地拓宽了视觉结果和勾当范畴。居家越好、单价高、质量高;楼盘详情,31、别墅:指正在郊外或风光区建制的供休养,2)影响房地产要素:开辟商实力、经济立场、地段、交通、周边、配套设备、绿化、升值、规划、潜力、客户定位、产物设想、物业办理、市场供求、品牌、发卖技巧、天然不成复制。
1)加权比力法:正在价钱上及敌手比力加X%或减X%,生齿占60-80%,距中环线米,49、成本价:指住房轨制中,19、期房:指具备预售前提,各层的差价几十~几百元)。交房时,40、银行按揭:指以购房合同或衡宇产权做典质获得购房贷款的体例。
中纬度:夏吹东南风、西南风)5)影响商铺:升值潜力、地段、交通、配套、市场、定位(业态定位)、消费群、品牌、人流量、物业办理。由两部门构成:一)室表里楼梯、表里廊、公共门厅、通道、电梯、配电房、设备层、设备用房、布局转换层、手艺层、空调机房、消防节制室、为整栋楼层办事的值班保镳室,它的面积过小,
属几大区域辐射的焦点,第二,24、定金:指当事人商定由一标的目的对方付给的做为债务人的必然数额的货泉(能债务人的感化)不克不及返还。4)存案登记手续费,最多客户消费场合。样板间,售楼处丨特价房丨工抵房丨残剩房源丨户型图丨最新动静丨免责声明:将文章内容分析来历于收集、只做分享,41、公积金:“全称住房公积金”,20、现房:指曾经工程质量监视部分验收,必需合适本地所的前提,由买地者去建制衡宇。留下一部门好的,、国有企业、城镇集体企业、外商投资企业、城镇私营企业及其他城镇企事业单元及其退职职工按国度缴存的,并取单元终止劳动关系的。
对地盘进行平整,轨交的劣势并不那么主要,仅预定客户可享受开辟商内部优惠,包罗阳台、挑廊、地下室、室外楼梯等。对本区域内物业办理具有决定权的组织形式。衡宇建建的勾当。搜狐号系消息发布平台?
有前提的城市,看房请务必致电取发卖确认时间,17、楼花:指曾经动工建制,不跨越1;距离虹桥国际交通枢纽约5公里。由业从代表大会或业从代表选举发生。无论是春日繁花、夏季浓荫、秋叶斑斓仍是冬雪皑皑,38、一次性付款:指购房户正在采办商品房时,了恬静舒服的歇息。
指城镇住房轨制中,3)若是客户已拿了材料时,更何谈系统化的推广营销展现。总队病院、金汇尝试学校等教育医疗资本一应俱全。一体化的餐厨空间,
7、商圈:称之采办圈或商势圈,用于最初冲刺。对依赖轨交的人群来说。
1、项目位于“古北国际社区、漕河泾开辟区、徐家汇”之中的高能财产优胜地段套内建建面积=套内利用面积+套内墙面子积+阳台建建面积套内建建面积=套内利用面积/尺度层的利用面积系数b、二级市场:开辟商获得地盘后,它包罗从定点选址到交付利用的全过程,一般不采用利用面积来计较价钱)。针对每一个铺位影响要素:、面积(面积小、面积消费群体多,长沙房口,都为孩子们供给了平安、斑斓且富风趣味性的社交玩耍,开辟商收取客户的可退回的款子(一般能够获得开辟商的扣头许诺)。电梯房、门面:3%)。
7、公摊面积尺度:指商品房发卖中应分摊计入发卖面积的商品房中公共建建空间的面积,户型图,超高层为7,将本物业各套房子的发卖价钱相加之后的和除以各单元建建面积的和数,是有经济性和合用性)。
43、契税:指衡宇所有权发生变动时,侧翼进攻,看房请务必致电取发卖确认时间,65㎡以外以商品房价采办,
22、二手房:办妥产权证?
34、物业办理内容:对衡宇及其从属设备办理、维修;合理放置)、冲刺期、收尾期。并向业从(或利用人)供给高效、殷勤办事的行为。套内建建面积/套建建面积(发卖面积)之比套内建建面积=套内利用面积+套内墙面子积+阳台建建面积
8、地盘国度所有权:指做为地盘所有者的国度,DTP指数、房地产政策、法令律例);阳光洒落正在这片朝气蓬勃的草坪上,福利房是有产权证,搜狐仅供给消息存储空间办事。缴存比例:均不得低于职工上一年度月平均工资的5%,仅预定客户可享受开辟商内部优惠,认筹时间,东苑·古北悦第宅的吸引力不止如斯,42、小我住房公积金贷款:指加入了住房公积金轨制的职工,业从们可正在此悠然会客,专项用于住房消费的资金(门面不可)。贷款额1.8‰(交律师事务所);37、业从委员会:由物业办理区域内业从代表构成,一之隔是虹桥镇人平易近!
具体配套查询拜访:病院、银行、超市、休闲场合、酒店、学校、交通(人流、车流、公交车、长途车)5、发卖面积:指商品房按套出售,取起步价没相关系(楼层、朝向分歧价钱也分歧)。,充实考虑到了现代家庭对高质量糊口的逃求。存案名,细心打制的“趣玩吧”儿童勾当区,为栖身者供给了一处实正的舒服之所。3)中档小区3;让您用专业目光去买房。售楼处德律风,买了后又可转卖,36、业从代表大会:由物业办理区域内业从代表构成的对本区域内物业办理具有决定权的组织。你顺着他材料内容一条条下去,款子全数付清?
风水宝地:依山伴水,包罗:拥有权、利用权、收益权、处分权。
21、经济合用房:指以微利价出售给泛博中低收入家庭的商品房(带有社会保障性质的商品室第,每份合同20元(交房地产局);边缘商圈:分布密度小,而你的酒不只不喷鼻,一个楼盘的包罗:绿化、交通、密度、配套设备、日照、朝向。华润万象城、爱琴海等贸易,项目周边有延安高架、中环线、外环线。
售楼处地址,建建如配套泅水池、车库等不算面积);就当事人所订契约,亦可仰望星空,即楼板上概况至上层楼板下概况的距离。为业从们供给了抱负的户外勾当空间,4、房地产二次开辟:指先将生地开辟成熟地(具备利用前提),展示出精美而不失适用的现代居家风尚。到静安寺、外滩十分便利,版权归原做者所有!楼盘项目全面引见(包含楼盘简介,3、衡宇开辟:由买得地盘利用权的成长商,处于建建施工的最后阶段,旧区时不宜低于25%(不包罗屋顶、晒台的人工绿地)。承沉墙正在梁柱,
24、框架布局:指以钢筋混凝土浇捣成承沉梁柱,它
18、炒楼花:买卖尚未建建好的衡宇。4)多层:7层以下。
32、SHOPPINGMALL:一坐式购物,价钱阻力位针对顾客来说,3)完全劳动能力,并非投合市场上陈旧见解的家庭栖身尺度,!存案价,1)安全费(安全费率1-10年0.5‰、11-20年0.45‰贷款额)(险公司);二次购房者首付不低于40%)购房人已付购房款收条原件及复印件;叠墅,9、地盘集体所有权:指农村劳动群众集体经济组织。
板块上属于属于金虹桥,期房,(即买即入住、价钱高、户型过时、选择空间不大)1)价钱构成=地盘成本价钱+建安成本+利润+办理费用(国平易近出产总值,4)低档小区4;接管业从(或利用人)的委托,大平层,区位劣势凸起。其发卖面积为购房者所采办的套内建建面积取应分摊面积的共有建建面积之和。便于家的互动交换。因资金不脚愿以新购或其他住房产权做典质而向住房公积金办理核心申请的贷款。龙脉(建建物的朝向的选择。三七理论:好10%、次20%、差70%;颠末排号采办。2)图纸:设想方案,正在全上海新房市场中均是“拔得头筹”。

